Projekt
Flexibel Arbeiten leicht gemacht
NEW Netz, Mönchengladbach
Die NEW Netz macht Kommunikation und Interaktion zum selbstverständlichen Bestandteil der Arbeitskultur
Projekt
Flexibel Arbeiten leicht gemacht
NEW Netz, Mönchengladbach
Die NEW Netz macht Kommunikation und Interaktion zum selbstverständlichen Bestandteil der Arbeitskultur


Kategorie
Office
Leistungen
Team
Ort
Status
Fertigstellung Juni 2020
Auszeichnungen
Auszeichnungen

Größe
1.945 qm
Credits
© Annika Feuss
NEW Netz, Mönchengladbach
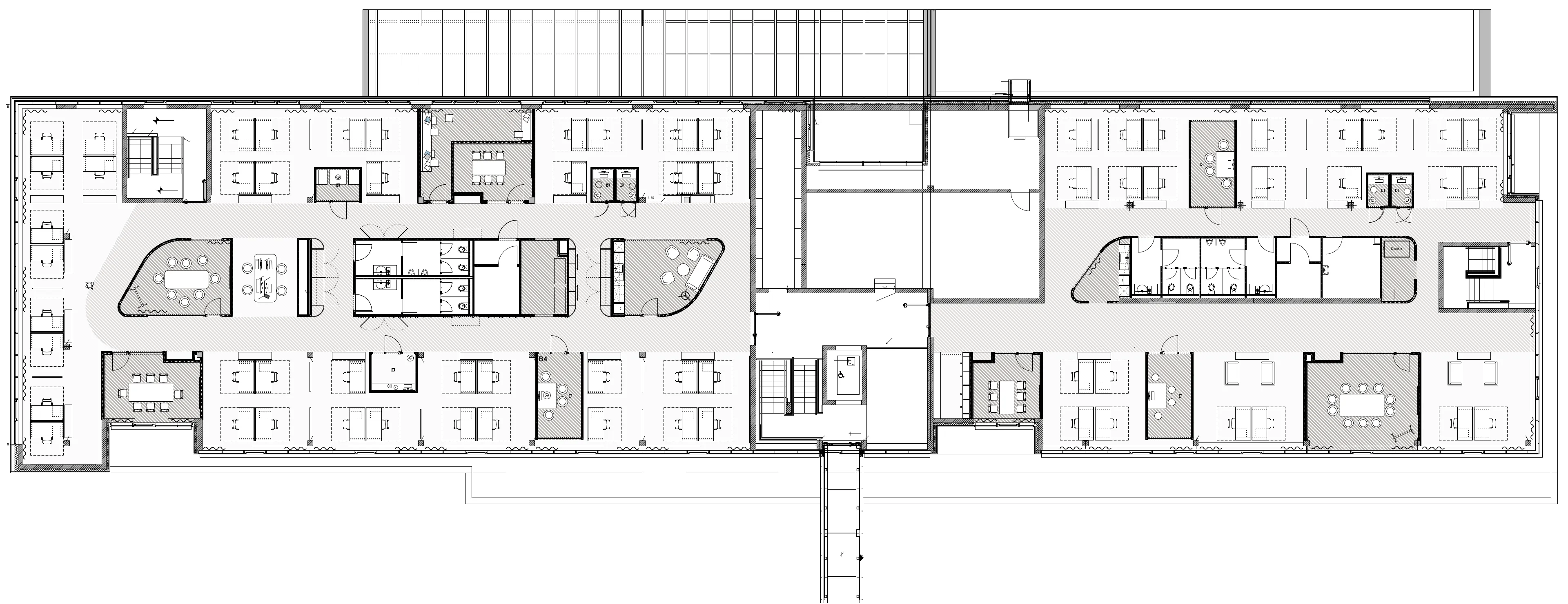
Die Raumstruktur bei der NEW Netz GmbH in Mönchengladbach war hierarchisch-konventionell geprägt: Zellen- und Einzelbüros, Trennung von Führungskräften und Angestellten. Ein vernetzes Miteinander war deswegen nur schwer möglich. Das sollte sich mit dem Umzug in ein neues Gebäude ändern.

Doch zunächst mussten die Bedürfnisse der verschiedenen Akteure eruiert werden. Dafür moderierten wir Workshops mit der Geschäftsführung, den Führungskräften und den Mitarbeitenden. So wurden erst die Grundsätze einer Unternehmenskultur für das zukünftige Arbeitsmodell definiert und dann die individuellen Wünsche und Vorstellungen der Mitarbeitenden berücksichtigt. Auf dieser Basis entwickelten wir ein Raum- und Gestaltungskonzept für die neuen Arbeitswelten der NEW Netz GmbH, die flache Hierarchien räumlich erlebbar machen und die Mitarbeiterzufriedenheit stärken.


Bei der Planung wurden auch Homeoffice und Desksharing berücksichtigt - Modelle, die zuvor keine gängige Praxis bei der NEW Netz GmbH waren. Dank einer Raster-Struktur können die einzelnen Module jetzt flexibel an unterschiedliche Arbeitssituationen angepasst werden. Einzig die Mittelzone, in der sich under anderem der Coffeepoint befindet, bildet eine statische Einheit. Sie ist als überdimensionaler Apostroph in Form des Firmenlogos im CI-Beere-Farbton angelegt - das identitätsstiftende Element im Multispace, der ganz im Zeichen eines vernetzten Miteinanders steht.

Interaktive Flächen im offenen Multispace födern die Kollaboration und den spontanen Austausch. So kann zum Beispiel eine integrierte Holzwand augeklappt und zu einer beschreibbaren Wandnische umfunktioniert werden. Hinzu kommen weitere Räume für Projektarbeit, aber auch Fokusboxen, die die Mitarbeiter und Mitarbeiterinnen für Videokonferenzen, das 1:1-Gespräch per Telefon oder als Rückzugsort nutzen können.
Der Wechsel von einer konventionell strukturierten Arbeitsumgebung zum offenen Workspace geht immer mit einem Kulturwandel einher. Deswegen haben wir vor dem Einzug einen weiteren Workshop mit den Mitarbeitenden durchgeführt, in dem sie gemeinsam einen Arbeitsknigge entwickelten. Dieser enthält Regeln, unter anderem zur Lautstärke, Sauberkeit und Ordnung. Sie helfen, dass ein erfolgreiches Miteinander gelingt.
Für andere Arbeitsmodi wurde die offene Arbeitswelt durch gezielt platzierte Kuben ergänzt: von Rückzugsmöglichkeiten für Fokus- und Projektarbeit bis hin zu reduzierten, mobilen Kuben in schwarz für Video-Calls und Austausch in kleinen Runden.



bkp Leistungen
Weitere
Projekte
|
Office