Projekt
Tradition trifft Moderne
Teekanne HQ, Düsseldorf
Zitate der Vergangenheit fördern in der innovativen Arbeitswelt der Teekanne die Identifikation und Motivation
Projekt
Tradition trifft Moderne
Teekanne HQ, Düsseldorf
Zitate der Vergangenheit fördern in der innovativen Arbeitswelt der Teekanne die Identifikation und Motivation


Kategorie
Office
Leistungen
Team
Ort
Kevelaerstraße 21
2340549 Düsseldorf
Status
Fertigstellung in Bauabschnitten in 2024
Auszeichnungen
Auszeichnungen

Größe
2.900 qm
Credits
© Annika Feuss; Teekanne
Teekanne HQ, Düsseldorf
Eine lange Firmenhistorie, modernste Produktionstechniken und eine riesige Auswahl an sowohl klassischen als auch innovativen Teesorten: Bei der Teekanne GmbH treffen Tradition und Moderne aufeinander. Das sollte am Düsseldorfer Firmensitz räumlich erlebbar gemacht werden.

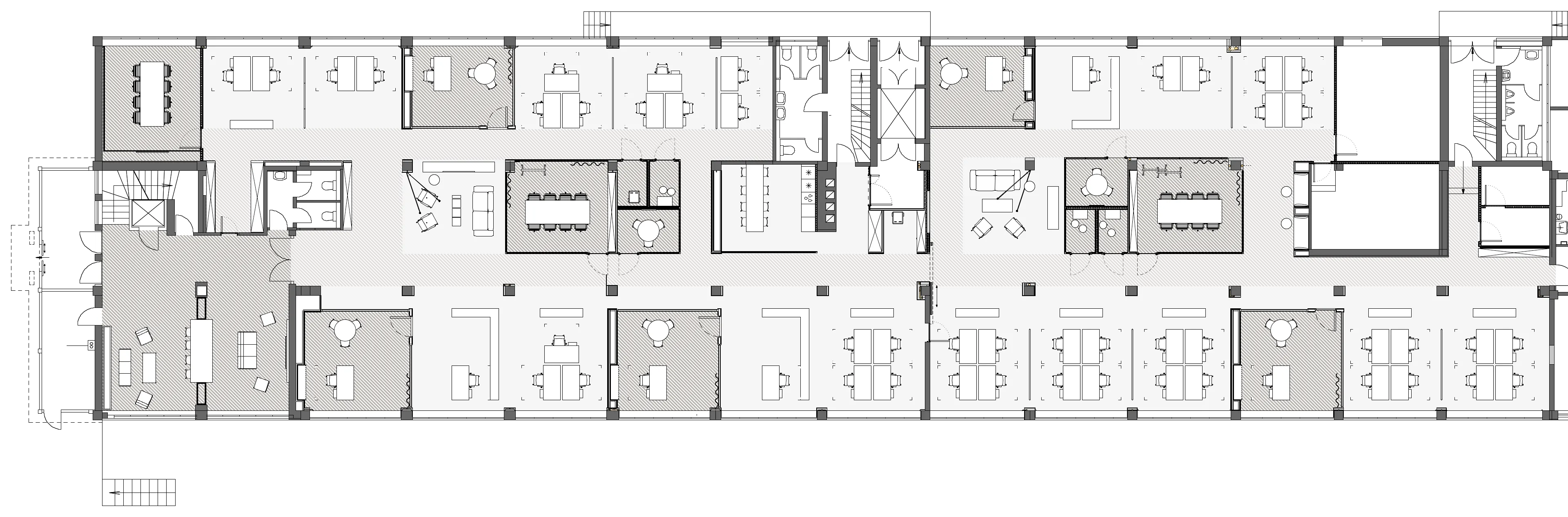
Die Herausforderung bei der Gestaltung der neuen Arbeitswelten war zweierlei: Einerseits wollten wir die lange Geschichte der Teekanne in die neue Umgebung integrieren. Sie sollte in jeder Ecke spürbar sein. Gerade jetzt und in Zukunft ist es bei einem steigenden Homeoffice-Anteil wichtig, die Unternehmenskultur zu betonen, um die Identifikation der Mitarbeitenden mit dem Arbeitgeber zu stärken. Andererseits musste ein Multispace geschaffen werden, der Möglichkeiten für Kollaboration, Kreation, aber auch für Rückzug bietet. Damit das gelingen konnte, war die enge Zusammenarbeit mit den nachfolgenden Generationen der Gründungsväter des Familienunternehmens enorm wichtig.
In vorgeschalteten Workshops mit der Führungsebene und den Mitarbeitenden definierten wir gemeinsam die Unternehmenskultur, auf der die künftige Zusammenarbeit bei der Teekanne basieren sollte. Sie war Ausgangspunkt für unsere anschließende Planung der neuen Arbeitsumgebung.
»Wir sind stolz auf unsere einzigartige Arbeitswelt, die unseren modernen Arbeitsalltag fit für die Zukunft macht und uns gleichzeitig jeden Tag an der Teekanne-Historie Anteil nehmen lässt. Noch stolzer macht es uns, dass das Teekanne-Bürokonzept nun sogar mit dem German Design Award 2022 ausgezeichnet wurde.
Der Multispace hilft uns, als Gemeinschaft flexibel und unkompliziert – getreu unseren Werten – partnerschaftlich zusammenzuarbeiten. Die hochwertige und einzigartige Ausstattung vermittelt uns nicht nur Wertschätzung, sondern inspiriert und motiviert uns immer wieder aufs Neue durch die geschickte Einbindung von Elementen der Vergangenheit, die Teekanne erfolgreich und beständig gemacht haben. So ist es noch schöner, das Homeoffice hinter sich zu lassen, Kolleg:innen zu treffen und miteinander zu arbeiten!«
Sebastian Moebus, Leiter Finanzen und Administration (CFO) Teekanne GmbH




Wandzitate der Teekanne-Gründer, ein Tisch in Form der Zahl 1882, dem Jahr der Unternehmensgründung, Trennwände mit industriell anmutender Verglasung, die das Flair vergangener Tage versprühen: Die Historie der Teekanne ist überall präsent. Im Erdgeschoss, genau dort, wo früher der Tee verpackt wurde, erzählen großformatige Bildmotive auf Glas die Geschichte des Familienunternehmens. An anderer Stelle werden sich im Tea Point die Geschichten von heute erzählt, denn er ist einer der Orte, an dem die Mitarbeitenden zum spontanen Austausch zusammenkommen. Auch hier wird die Firmentradition anhand verschiedener Elemente erlebbar: Die Messingverkleidung erinnert an jene historischen Teedosen, die in gestapelter Form als Wandgrafik den Tea-Point prägen. Das Highlight des Raums bildet eine historische Original-Teekanne-Leuchte.
100
+
gesichtete Archivfotos erzählen die Geschichte im Raum.
30
qm
Messingverkleidung schlagen die Brücke zur Teedose
180
+
Buchstaben formen die Wandzitate der Teekanne-Gründer


Für den effektiven Austausch mit den Kollegen und Kolleginnen im Homeoffice per Telefon oder Video-Konferenz gibt es kleine und große Rückzugsorte wie Einzelbüros oder Meetingräume. Die Zellenstruktur macht räumliche Einheiten im offen Multispace möglich, Desksharing kann jederzeit implementiert werden.


In puncto Materialien zieht sich ein authentischer, natürlicher Charakter durch die neuen Arbeitswelten der Teekanne: So werden unter anderem Eichenholz, Stahlprofile und Steingussboden verwendet. Lediglich kleine Farbelemente dienen der Akzentuierung.



bkp Leistungen
Weitere
Projekte
|
Office